
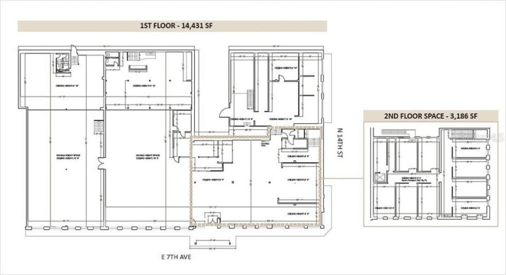
Situated in the heart of Ybor City on historic 7th Avenue, this iconic mixed-use property presents a rare opportunity for investors or owner-users seeking a prime location in one of Tampa's most vibrant districts.The property features approximately 17,864 square feet of flexible space ideal for office, retail, or restaurant use, with the ability to subdivide. This historic building offers strong visibility, high foot traffic, and immediate access to surrounding retail, dining, and entertainment ...Situated in the heart of Ybor City on historic 7th Avenue, this iconic mixed-use property presents a rare opportunity for investors or owner-users seeking a prime location in one of Tampa's most vibrant districts.The property features approximately 17,864 square feet of flexible space ideal for office, retail, or restaurant use, with the ability to subdivide. This historic building offers strong visibility, high foot traffic, and immediate access to surrounding retail, dining, and entertainment venues.Additional highlights include ample onsite parking, central air conditioning, and flexible build-out potential. Positioned along a main thoroughfare, this property benefits from consistent pedestrian and vehicle traffic, making it ideal for a wide range of commercial uses.
View MoreCourtesy of
Agency Name: FLORIDA COMMERCIAL GROUP
Agency Contact: 813-935-9600
Agent Name: Tina Marie Eloian
Presented by
Agent Name: Claudia Paradeda PA
Agent Phone: 305.978.7598
Agency Title: The Keyes Company
Request Info
Send an email with a link to
1324 E 7th Avenue , Tampa, FL 33605.
Email 1324 E 7th Avenue , Tampa, FL 33605
Thank you for your inquiry! As a thank you, we have a Special Mortgage Offer for You.
We would like to provide you a free, no-obligation, home loan pre-approval review.