
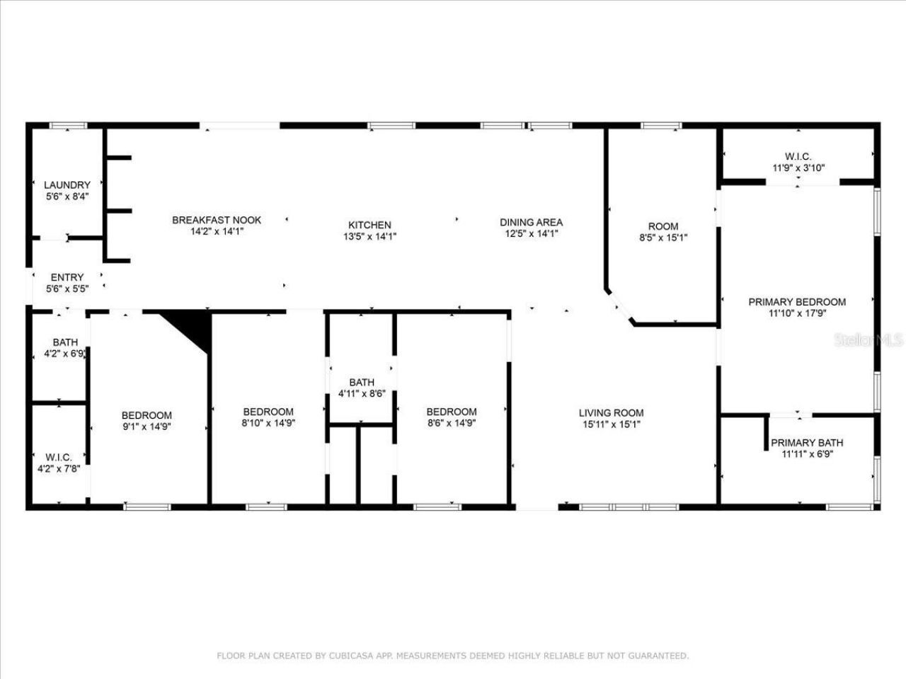
mpressive 4 bedroom/3 bathroom manufactured home located on one acre in the gorgeous Three Rivers Estates Community. Three Rivers Estates (TREPO) maintains nine private parks located on the Ichetucknee and Santa Fe Rivers across two counties, this location is true gem and for only $175 annually you can have access to all private boat ramps to have family gatherings, boating and playing! This home has an huge floor plan, as you enter the front door you will notice a bright open floor plan, the la...mpressive 4 bedroom/3 bathroom manufactured home located on one acre in the gorgeous Three Rivers Estates Community. Three Rivers Estates (TREPO) maintains nine private parks located on the Ichetucknee and Santa Fe Rivers across two counties, this location is true gem and for only $175 annually you can have access to all private boat ramps to have family gatherings, boating and playing! This home has an huge floor plan, as you enter the front door you will notice a bright open floor plan, the large living room, a spacious dining room, a kitchen perfect for entertaining, many many cabinets and extra counter top space. A large breakfast nook area with custom built in shelving or would be perfect for a family room. A true split floor plan with three bedrooms , 2 bathrooms on one side of the home and the master bedroom and master bathroom off the living room. Each guest bedroom offers ample space , a Jack n Jill bathroom shared by one set of bedrooms , then another guest bathroom. Master is HUGE! It has an added space that is perfect for an office or nursery with a larger master bathroom. Property is one full acre perfect for LOW maintenance. Situating in such a desirable area , right near the Santa Fe River and several local towns nearby for all your amenities, dining and shopping. This home is a must see! Call today for YOUR tour! Accepting ALL loans!
View MoreCourtesy of
Agency Name: LPT REALTY, LLC
Agency Contact: 352-463-0054
Agent Name: Burgandy Arrington
Presented by
Agent Name: Claudia Paradeda PA
Agent Phone: 305.978.7598
Agency Title: The Keyes Company
Request Info
Send an email with a link to
4135 290th Terrace, Branford, FL 32008.
Email 4135 290th Terrace, Branford, FL 32008
Thank you for your inquiry! As a thank you, we have a Special Mortgage Offer for You.
We would like to provide you a free, no-obligation, home loan pre-approval review.