
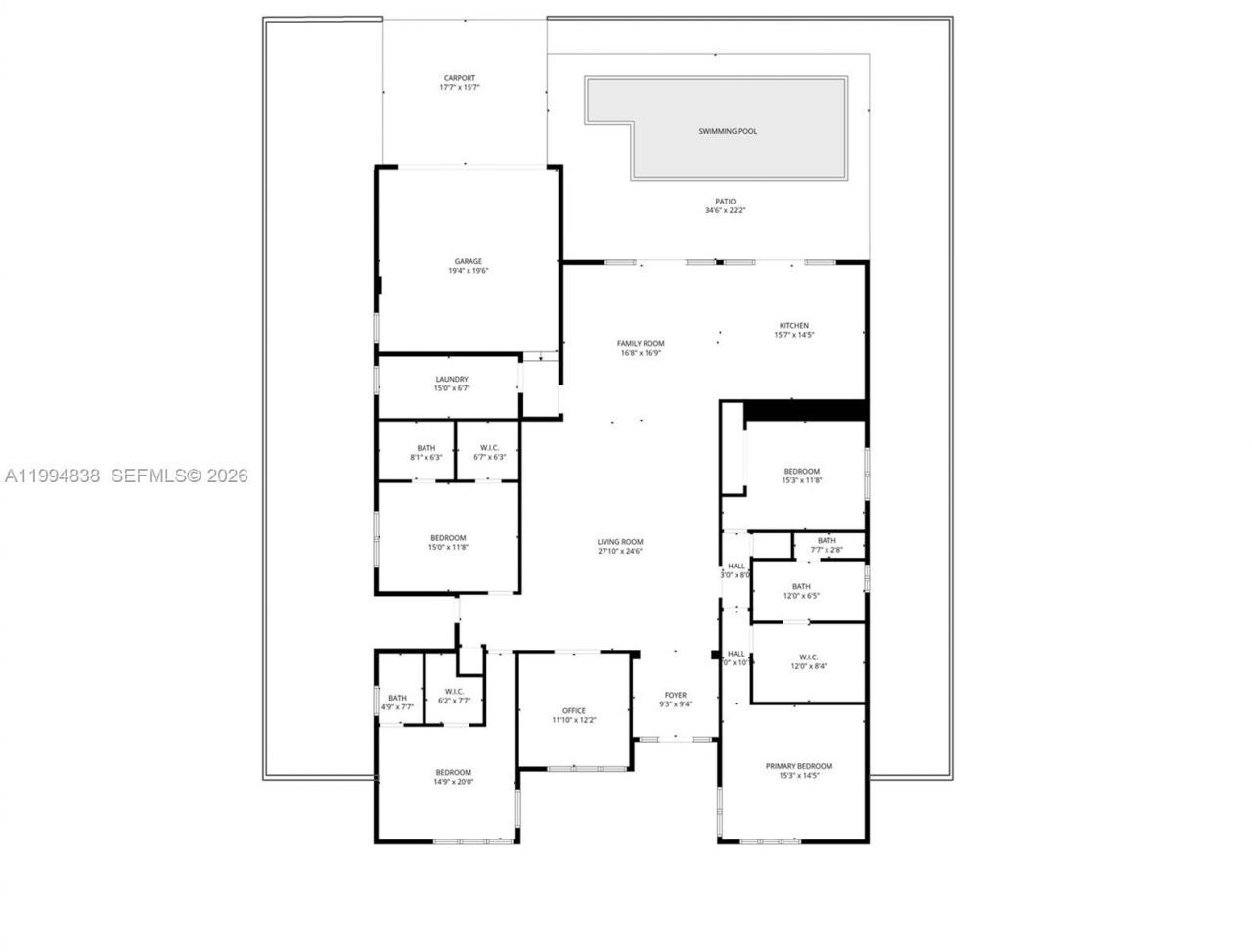
Exceptional residence rebuilt to the studs and completed in 2026, with only the original exterior shell retained. This 99% new construction home offers timeless elegance, warm modern design and exceptional attention to detail. The home features 4 bedrooms, an integrated den/office, and 4 bathrooms. Designed for modern living and effortless entertaining, it offers expansive living, dining, and family areas filled with natural light. The custom white oak kitchen includes premium Bosch appliances, ...Exceptional residence rebuilt to the studs and completed in 2026, with only the original exterior shell retained. This 99% new construction home offers timeless elegance, warm modern design and exceptional attention to detail. The home features 4 bedrooms, an integrated den/office, and 4 bathrooms. Designed for modern living and effortless entertaining, it offers expansive living, dining, and family areas filled with natural light. The custom white oak kitchen includes premium Bosch appliances, a panel-ready refrigerator, pull-out pantry with high-end Blum hardware, a large island, Italian fixtures, and a 175-bottle wine cooler. White oak floors in the bedrooms, porcelain tile in the main areas, Italian-style closets, luxury baths, designer lighting, and custom millwork complete the refined interior. Seamless indoor-outdoor flow defines the home, with a covered terrace, full BBQ summer kitchen, ice maker, and a newly built contemporary pool. Additional features include a covered A/C two-car garage, new driveway, aluminum fence with electronic gate, modern exterior lighting, lush landscaping, irrigation system, and full smart home automation. Located on a quiet street near the Miami Shores Tennis Club, golf course, cafés, restaurants, village shops, and minutes from top schools, this non-flood zone property delivers location, lifestyle, and design at the highest level.
View MoreCourtesy of
Agency Name: Coldwell Banker Realty
Agency Phone: 305-361-5722
Agent Name: Mariana Garber
Presented by
Agent Name: Claudia Paradeda PA
Agent Phone: 305.978.7598
Agency Title: The Keyes Company
Request Info
Send an email with a link to
525 NE 101 St , Miami Shores, FL 33138.
Email 525 NE 101 St , Miami Shores, FL 33138
Thank you for your inquiry! As a thank you, we have a Special Mortgage Offer for You.
We would like to provide you a free, no-obligation, home loan pre-approval review.