
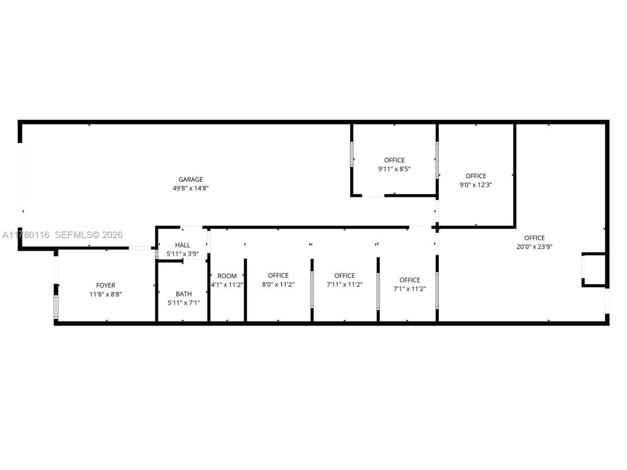
Prime Location! Corner Unit! Street Level! 9 parking spaces. Zoned industrial/commercial use! Well-maintained! Multi-functional! Growth Potential!!Warehouse for Sale in prime location - well-positioned area for easy access to I-75 and Palmetto Expressway; close to MIA and port of Miami making it ideal for logistics, distribution or manufacturing needs. 1,800 sq ft is compact yet very functional space for small to mid-size businesses. 70% of the space is dedicated to office use, providing a profe...Prime Location! Corner Unit! Street Level! 9 parking spaces. Zoned industrial/commercial use! Well-maintained! Multi-functional! Growth Potential!!Warehouse for Sale in prime location - well-positioned area for easy access to I-75 and Palmetto Expressway; close to MIA and port of Miami making it ideal for logistics, distribution or manufacturing needs. 1,800 sq ft is compact yet very functional space for small to mid-size businesses. 70% of the space is dedicated to office use, providing a professional environment for administrative, sale, or managerial tasks. 30% is warehouse space for storage, light manufacturing or distribution. Ample parking for employees, clients and delivery vehicles. Perfect for a business that needs both office space and warehouse storage. OFFICES CAN BE DEMOLISHED TO HAVE MORE WAREHOUSE SPACE!!
View MoreCourtesy of
Agency Name: ComReal Miami - Doral, LLC.
Agency Phone: 305-815-3376
Agent Name: Patricia Quintana
Presented by
Agent Name: Claudia Paradeda PA
Agent Phone: 305.978.7598
Agency Title: The Keyes Company
Request Info
Send an email with a link to
9180 NW 119th St, Unit 10, Hialeah Gardens, FL 33018.
Email 9180 NW 119th St, Unit 10, Hialeah Gardens, FL 33018
Thank you for your inquiry! As a thank you, we have a Special Mortgage Offer for You.
We would like to provide you a free, no-obligation, home loan pre-approval review.