
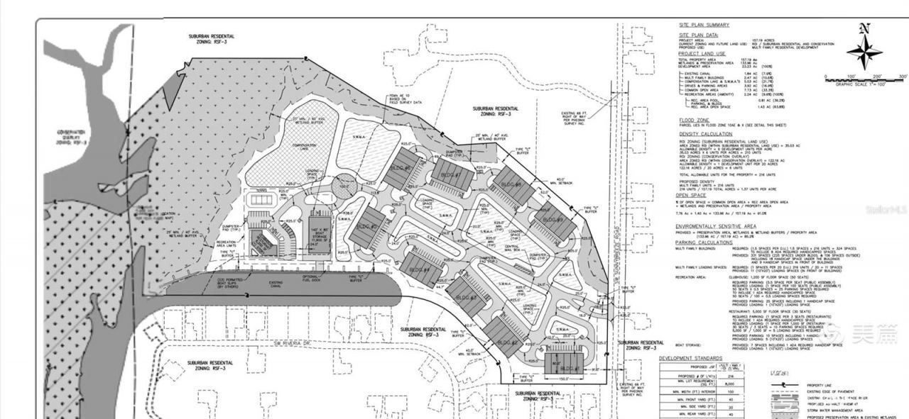
157+ ACRES ON THE PEACE RIVER - DEVELOPMENT OPPORTUNITY *Paradise Island* An exceptional opportunity to acquire 157+ acres of unspoiled Old Florida beauty along the scenic Peace River. This rare offering combines natural waterfront charm with significant development potential, making it ideal for visionary builders, investors, or those seeking a legacy property.Approximately 27+ acres of high and dry land provide a strong foundation for development, while the remaining acreage offers a stunning ...157+ ACRES ON THE PEACE RIVER - DEVELOPMENT OPPORTUNITY *Paradise Island* An exceptional opportunity to acquire 157+ acres of unspoiled Old Florida beauty along the scenic Peace River. This rare offering combines natural waterfront charm with significant development potential, making it ideal for visionary builders, investors, or those seeking a legacy property.Approximately 27+ acres of high and dry land provide a strong foundation for development, while the remaining acreage offers a stunning backdrop of native landscape, perfect for preserving natural aesthetics or creating a one-of-a-kind eco-focused project. Zoned ROI and A-5, the property allows for a wide range of possibilities including a private riverfront estate, boutique eco-resort, residential development, or mixed-use concept.Developers will appreciate the groundwork already in place-previous approvals for up to 216 units offer a valuable head start for those looking to move forward with a residential project (documentation available upon request). Additionally, there is potential for up to 23 private docks, providing direct boating access to the river and out to the Gulf, a highly desirable feature in Southwest Florida waterfront communities.Infrastructure is within reach, with water and sewer nearby, enhancing the feasibility and cost-efficiency of future development.Strategically located with convenient access to Arcadia, Port Charlotte, and Punta Gorda, the property also offers easy connectivity to regional travel hubs including Punta Gorda Airport and Southwest Florida International Airport.Whether you envision a luxury riverfront community, a serene eco-retreat, or a private estate surrounded by nature, this property delivers the scale, location, and flexibility to bring your vision to life.
View MoreCourtesy of
Agency Name: COLDWELL BANKER SUNSTAR REALTY
Agency Contact: 941-225-4663
Agent Name: Laura Frantz
Presented by
Agent Name: Claudia Paradeda PA
Agent Phone: 305.978.7598
Agency Title: The Keyes Company
Request Info
Send an email with a link to
Sw Sunnybreeze Road , Arcadia, FL 34269.
Email Sw Sunnybreeze Road , Arcadia, FL 34269
Thank you for your inquiry! As a thank you, we have a Special Mortgage Offer for You.
We would like to provide you a free, no-obligation, home loan pre-approval review.